New Annapolis Waterfront Eastport Listing

New Annapolis Waterfront Eastport Listing

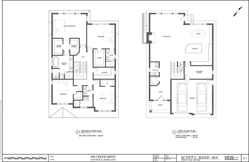
Annapolis waterfront at its finest. Custom 3250 sq. ft. with 4 bedrooms and 3.5 bathrooms, full basement & two car garage. New Construction Arts and Crafts home thoughtfully designed in true Eastport style built by premier Annapolis builder Mona Design Build. Featuring a gourmet chef’s kitchen w/ upgraded appliances, marble counter tops, luxurious ceramic baths, 5″ red oak hardwoods, extensive trim/mold & gas fireplace.
 
Exterior features include hardi-concrete shake and lap siding, stone veneer, & custom black trim windows. Utmost attention to detail throughout the home. Expansive views of Spa Creek, Historic Annapolis & the Maryland State House. New dock/pier, perfect for any boat or water enthusiast. Utmost attention to detail. This property is truly one of a kind.

Project completion – Summer 2018

Offered at $3,200,000

** This is currently a Non-MLS listing, please contact me directly for more information at (301) 461-7987 or [email protected] **
 
 
 
 
 
Work With Brian

Work With Brian

Your Local Real Estate Connection Get a positive, helpful partner for buying or selling a home: Trusted resource for answers about the process Innovative marketing strategies Expertise about neighborhood features Ability to target home searches Strong negotiation skills Support through the closing and beyond.

Follow Me on Instagram